Viviendas Oficinas

Viviendas Oficinas

dos usos

2024

#obranueva#bim

Primer proyecto que involucra disciplinas ARQ, MEP y STR.

Desarrollado totalmente en Revit.

Trasladar informació de CAD existente a BIM.

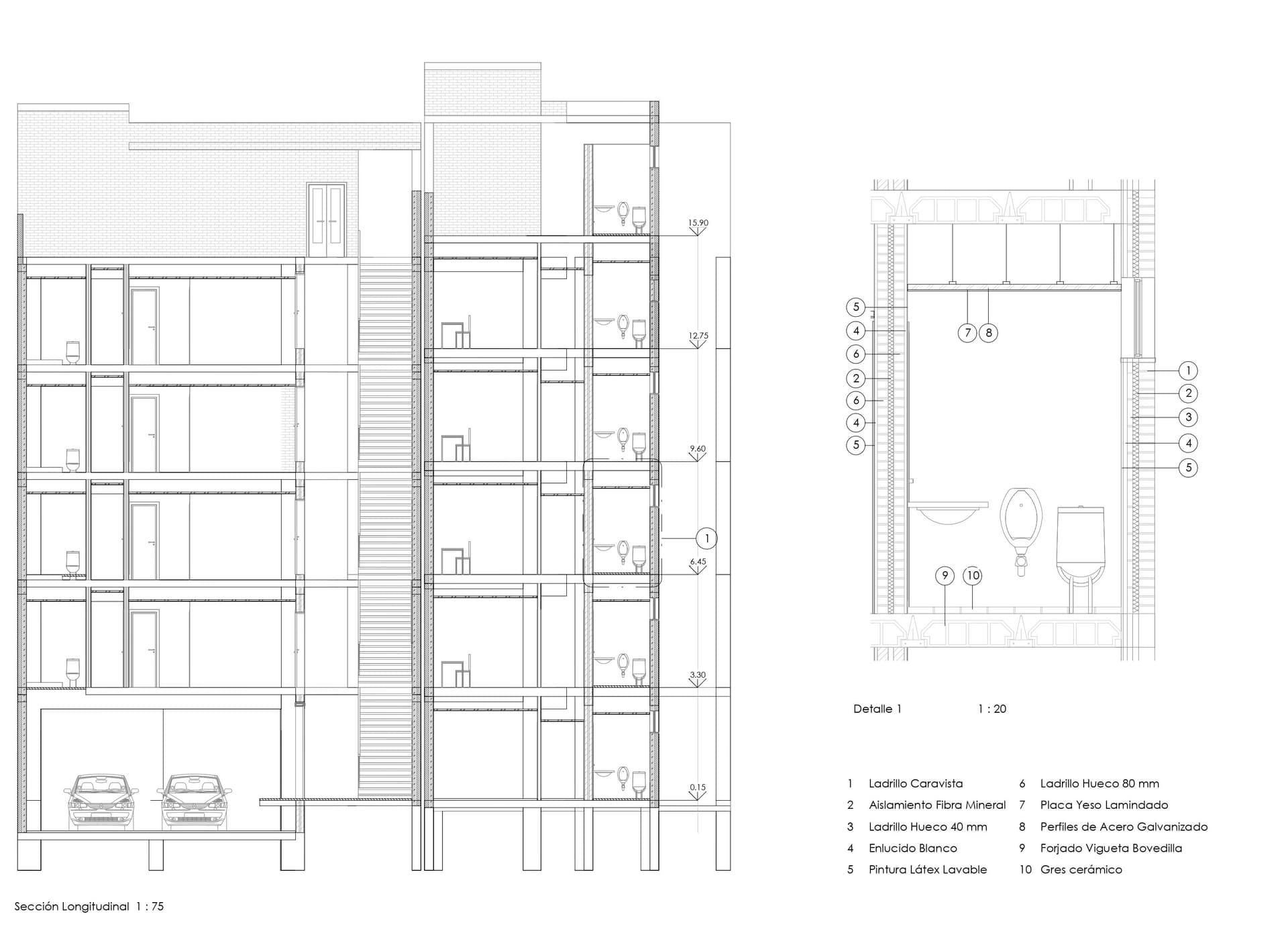
Se trata de dos edificios, uno de viviendas y otro de
oficinas.

Ximena Serrano Espíndola project image

2024

dos usos

Viviendas Oficinas

Ximena Serrano Espíndola project image

2024

dos usos

Viviendas Oficinas

Ximena Serrano Espíndola project image

2024

dos usos

Viviendas Oficinas

Ximena Serrano Espíndola project image

2024

dos usos

Viviendas Oficinas

Ximena Serrano Espíndola project image

2024

dos usos

Viviendas Oficinas