
2022
Primer proyecto como delineante.
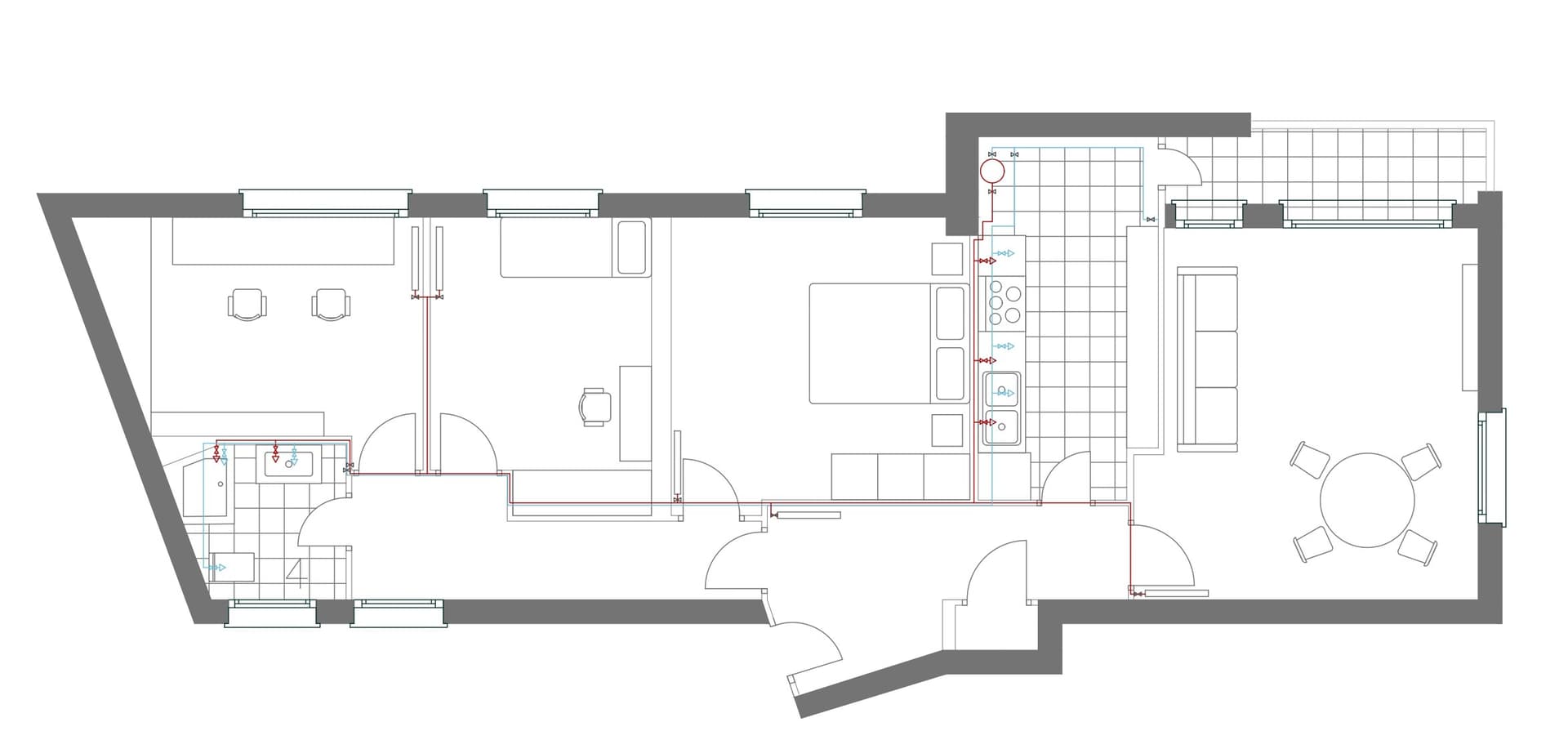
¿Cómo mejorar la calidad de vida de los habitantes?
¿Cuáles son las necesidades?
¿Qué se puede modificar?
Una vez resuelto este planteamiento, procedo al diseño y
proyección de los nuevos espacios.

2022

2022

2022