CAP Pineda

CAP Pineda

espacios de salud

2024

#obranueva#bim

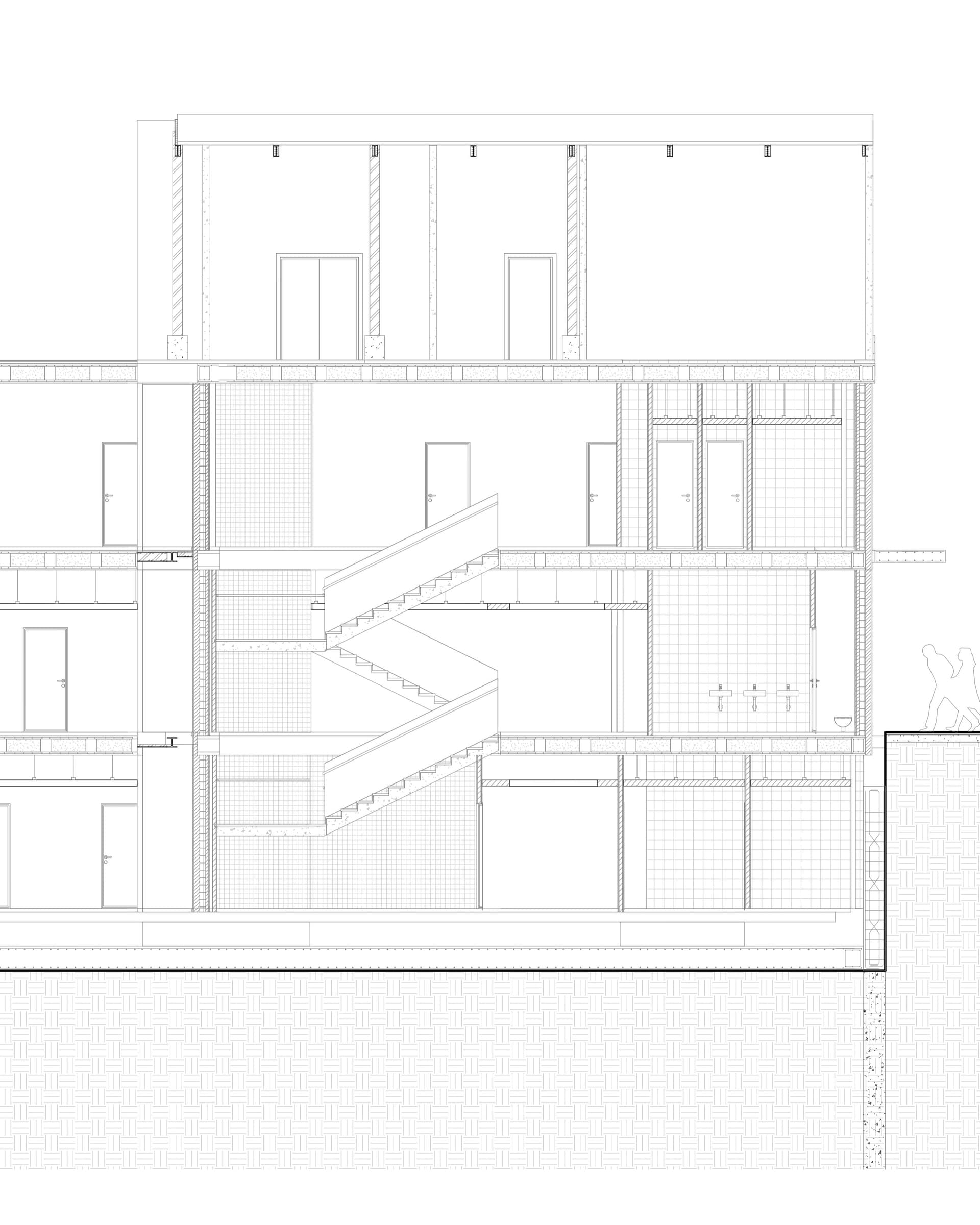
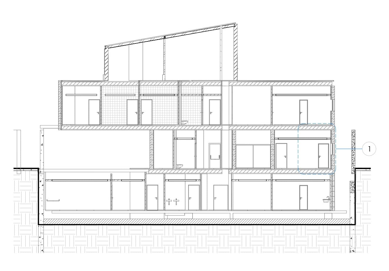
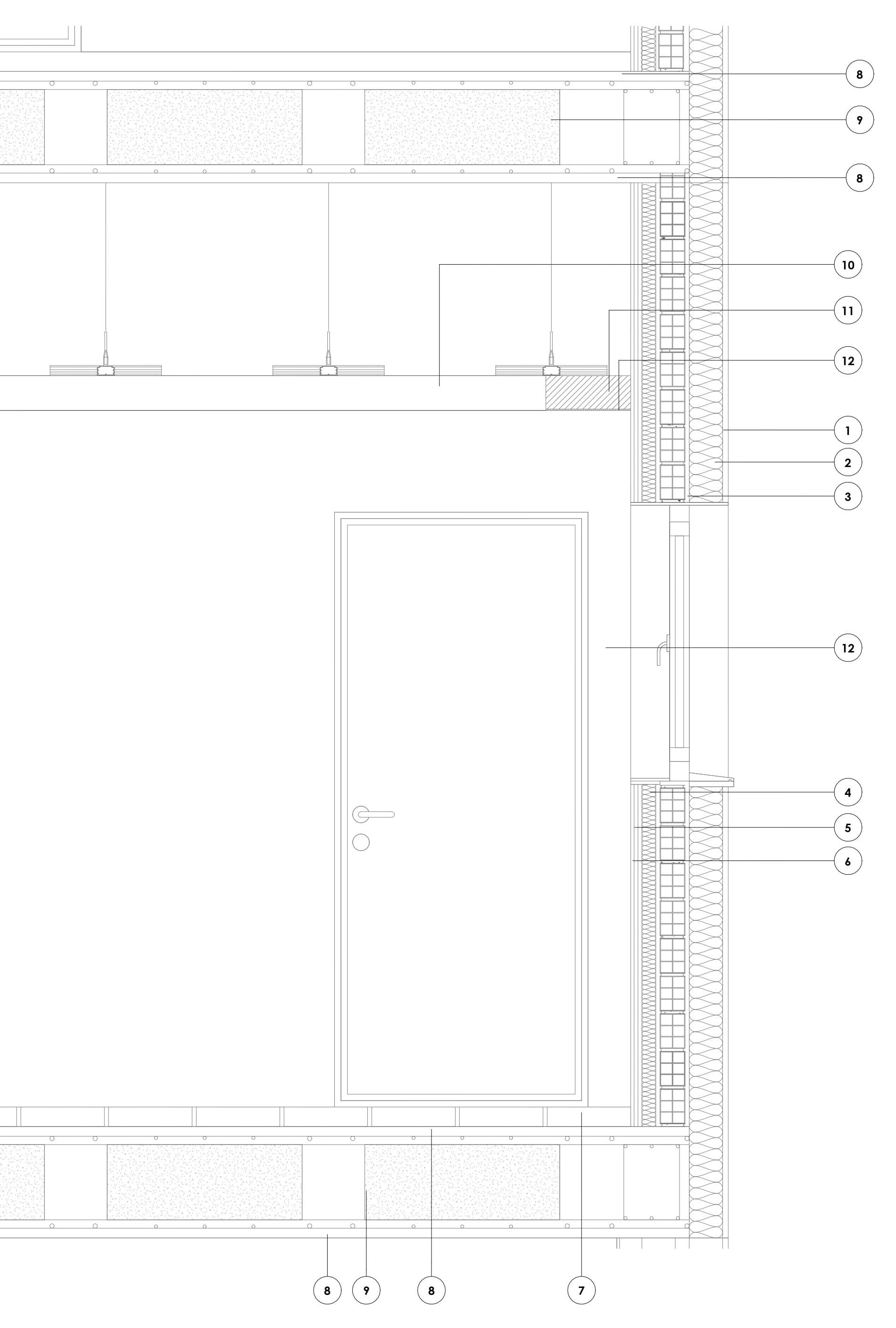
Segundo proyecto que involucra disciplinas ARQ,
MEP y STR

Saber cómo interpretar información ya existente

MEP más complejo

Planos ARQ de proyecto ejecutivo

Creditos a CASA SOLO estudio por el proyecto

Ximena Serrano Espíndola project image

2024

espacios de salud

CAP Pineda

Ximena Serrano Espíndola project image

2024

espacios de salud

CAP Pineda

Ximena Serrano Espíndola project image

2024

espacios de salud

CAP Pineda

Ximena Serrano Espíndola project image

2024

espacios de salud

CAP Pineda

Ximena Serrano Espíndola project image

2024

espacios de salud

CAP Pineda

Ximena Serrano Espíndola project image

2024

espacios de salud

CAP Pineda

Ximena Serrano Espíndola project image

2024

espacios de salud

CAP Pineda

Ximena Serrano Espíndola project image

2024

espacios de salud

CAP Pineda